Karreveld
In het charmante dorpscentrum van Malderen (Londerzeel) verrijst Karreveld, een kleinschalig woonproject met 5 energiezuinige woningen (2 halfopen en 3 gesloten bebouwingen) in een tijdloze pastorijstijl. Elke woning is BEN (Bijna-Energie-Neutraal) en CO₂-neutraal, dankzij onder meer een lucht-waterwarmtepomp in combinatie met vloerverwarming. Met een bewoonbare oppervlakte van ca. 210 m² bieden de woningen ruime leefruimtes, veel lichtinval en een hoog wooncomfort. Alles wat u nodig heeft ligt op wandelafstand — scholen, winkels, openbaar vervoer en gezellige buurtvoorzieningen. U geniet van de rust van een dorp, met de nabijheid van Londerzeel en vlotte verbindingen richting Brussel en Antwerpen (A12).
Dit project komt in aanmerking voor het 6% BTW-tarief (onder voorwaarden). Nieuw voor investeerders: het 6% BTW-tarief geldt nu ook voor aankopen die gedurende 15 jaar verhuurd worden (onder voorwaarden). Meer info in NIEUWS.
Dit project komt in aanmerking voor het 6% BTW-tarief (onder voorwaarden). Nieuw voor investeerders: het 6% BTW-tarief geldt nu ook voor aankopen die gedurende 15 jaar verhuurd worden (onder voorwaarden). Meer info in NIEUWS.
Interesse om te kopen?
Benieuwd naar deze charmante nieuwbouwwoningen? Neem vrijblijvend contact op.
Koen Van der Snickt
+32 490 45 29 11
info@quup.be
www.quup.be
Koen Van der Snickt
+32 490 45 29 11
info@quup.be
www.quup.be
463.000 €
Woning - Lot 1
Specificaties
211m2
Huis
3
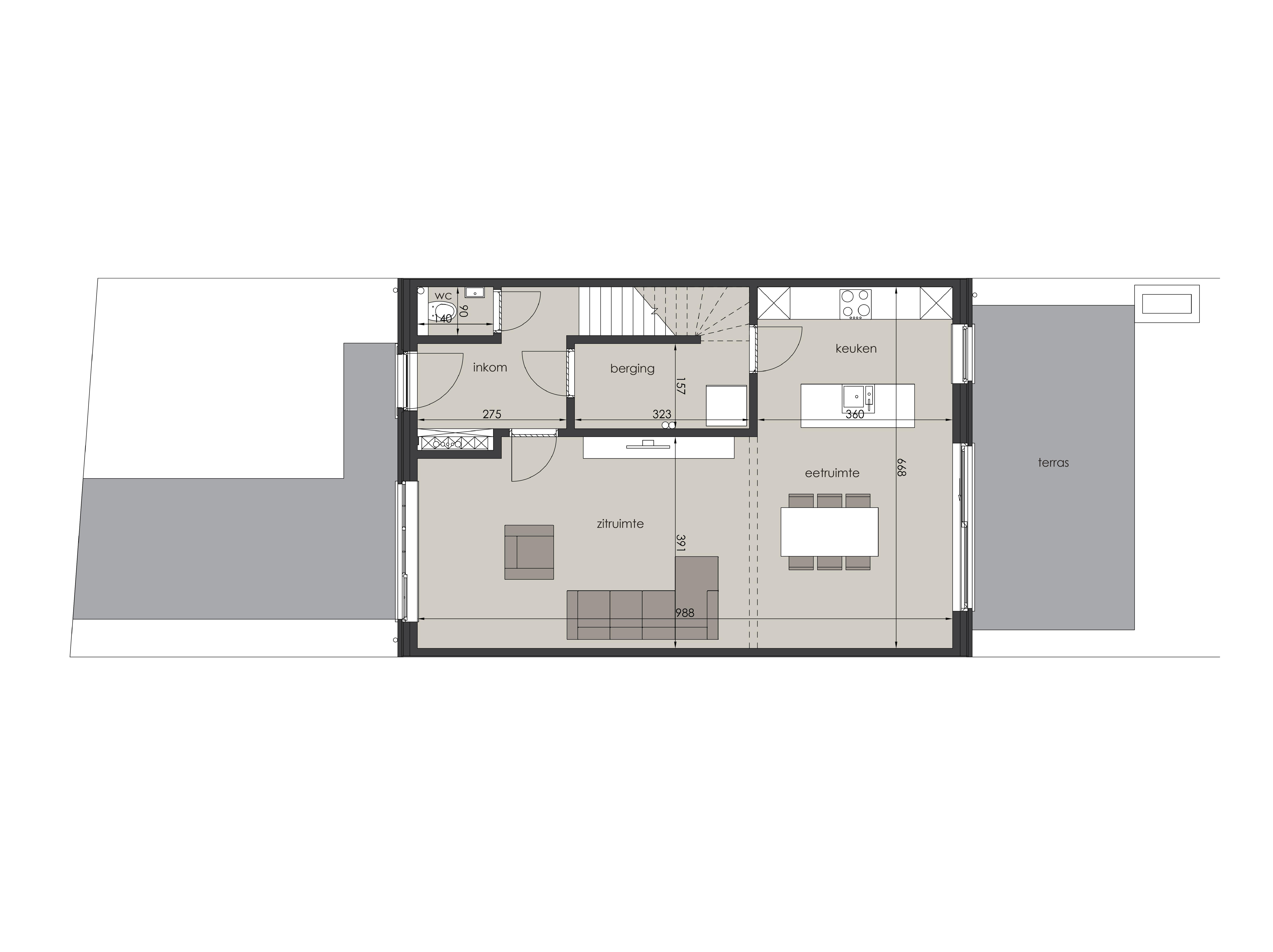
Deze halfopen nieuwbouwwoning op een perceel van 2a 74ca wordt sleutel-op-deur afgewerkt. U kiest zelf welke materialen en afwerking, in samenwerking met onze vaste kwaliteitsleveranciers. De woning biedt een praktische indeling, veel lichtinval en modern wooncomfort. Een bijkomende troef is de ruime zolder met vaste trap, die optioneel kan worden ingericht, bijvoorbeeld als extra slaapkamer, bureau of hobbyruimte. De woning is BEN (Bijna-Energie-Neutraal) en CO₂-neutraal, dankzij onder meer een lucht-waterwarmtepomp in combinatie met vloerverwarming.
418.000 €
Woning - Lot 2
Specificaties
208m2
Huis
3
Deze gesloten nieuwbouwwoning op een perceel van 1a 90ca wordt sleutel-op-deur afgewerkt, waarbij u zelf de materialen en afwerking kiest in samenwerking met onze vaste kwaliteitsleveranciers. De woning biedt een praktische indeling, veel natuurlijk licht en hedendaags wooncomfort. Een bijkomende troef is de ruime zolder met vaste trap, die optioneel kan worden ingericht als extra slaapkamer, bureau of hobbyruimte. De woning is BEN (Bijna-Energie-Neutraal) en CO₂-neutraal, dankzij onder meer een lucht-waterwarmtepomp in combinatie met vloerverwarming.
418.000 €
Woning - Lot 3
Specificaties
208m2
Huis
3
Deze gesloten nieuwbouwwoning op een perceel van 1a 93ca wordt sleutel-op-deur afgewerkt, waarbij u zelf de materialen en afwerking kiest in samenwerking met onze vaste kwaliteitsleveranciers. De woning combineert een doordachte indeling met veel lichtinval en modern wooncomfort. Een bijkomende troef is de ruime zolder met vaste trap, die optioneel kan worden ingericht als extra slaapkamer, bureau of hobbyruimte. De woning is BEN (Bijna-Energie-Neutraal) en CO₂-neutraal, dankzij onder meer een lucht-waterwarmtepomp in combinatie met vloerverwarming.
418.000 €
Woning - Lot 4
Specificaties
208m2
Huis
3
Deze gesloten nieuwbouwwoning op een perceel van 1a 99ca wordt sleutel-op-deur afgewerkt, waarbij u zelf de materialen en afwerking kiest in samenwerking met onze vaste kwaliteitsleveranciers. De woning combineert een doordachte indeling met veel lichtinval en modern wooncomfort. Een bijkomende troef is de ruime zolder met vaste trap, die optioneel kan worden ingericht als extra slaapkamer, bureau of hobbyruimte. De woning is BEN (Bijna-Energie-Neutraal) en CO₂-neutraal, dankzij onder meer een lucht-waterwarmtepomp in combinatie met vloerverwarming.
473.000 €
Woning - Lot 5
Specificaties
208m2
Huis
3
Deze halfopen nieuwbouwwoning op een perceel van 3a wordt sleutel-op-deur afgewerkt, waarbij u zelf de materialen en afwerking kiest in samenwerking met onze vaste kwaliteitsleveranciers. De woning biedt een praktische indeling, veel natuurlijk licht en modern wooncomfort. Een bijkomende troef is de ruime zolder met vaste trap, die optioneel kan worden ingericht als extra slaapkamer, bureau of hobbyruimte. De woning is BEN (Bijna-Energie-Neutraal) en CO₂-neutraal, dankzij onder meer een lucht-waterwarmtepomp in combinatie met vloerverwarming.
Prijzen zijn steeds excl. BTW en kosten.
Powered by gmapgen jp & http://www.googlemapsgenerator.com/nl/ http://www.googlemapsgenerator.com/nl/ http://www.googlemapsgenerator.com/fr/ http://www.googlemapsgenerator.com/fr/ http://www.googlemapsgenerator.com/es/ http://www.googlemapsgenerator.com/es/ http://www.googlemapsgenerator.com/ja/ http://www.googlemapsgenerator.com/ja/ http://www.googlemapsgenerator.com/zh/ http://www.googlemapsgenerator.com/zh/





